HART ROAD


Modern contemporary architecture small urban private residence
architectural design drawing elevation section
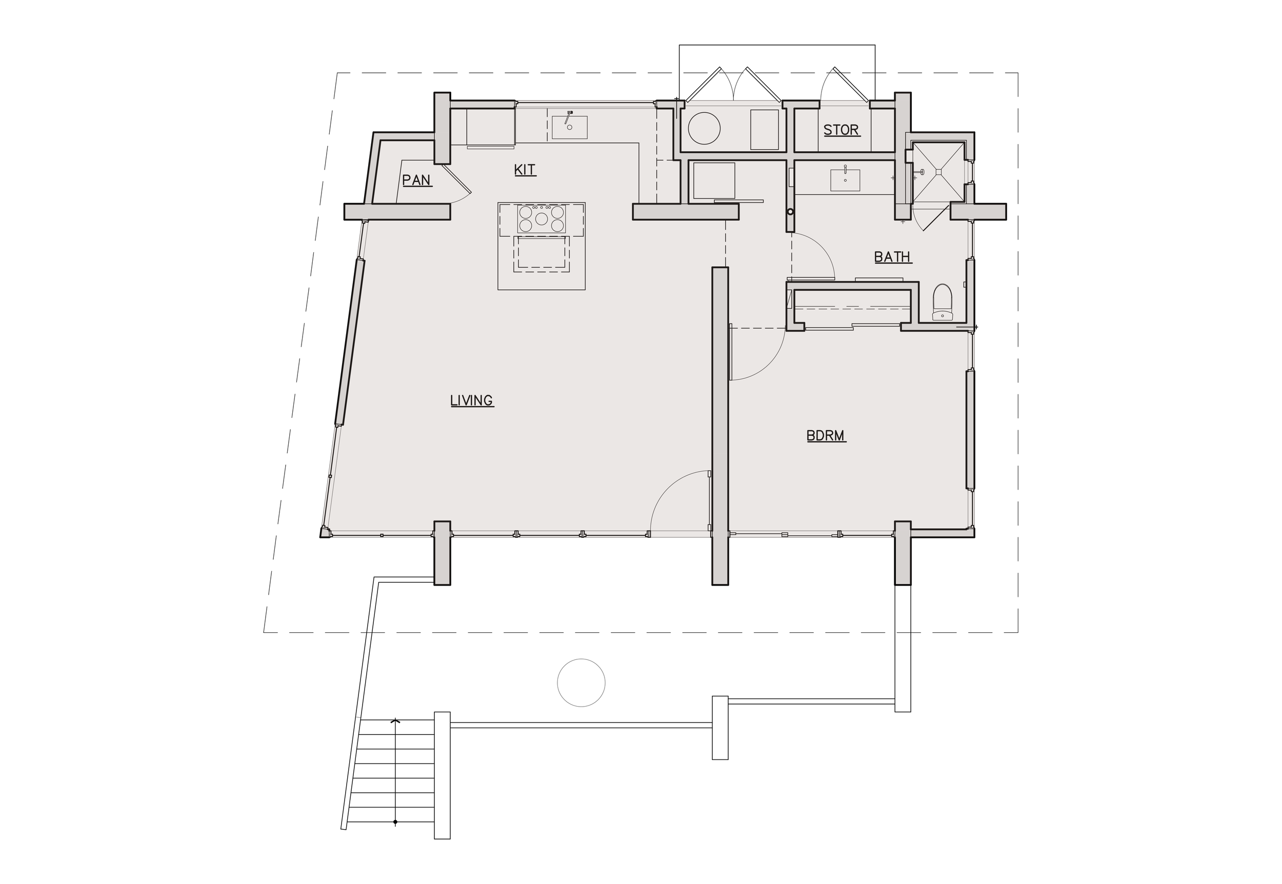
architectural design floor plan
Private open floor plan contemporary living space sleek interior furnishing sedona architecture
custom hardwood cabinetry open contemporary modern kitchen
Private open floor plan contemporary living space sleek interior furnishing sedona architecture
Private contemporary bedroom sleek interior furnishing sedona architecture