cliff creek


modern craftsman residential architecture sedona arizona
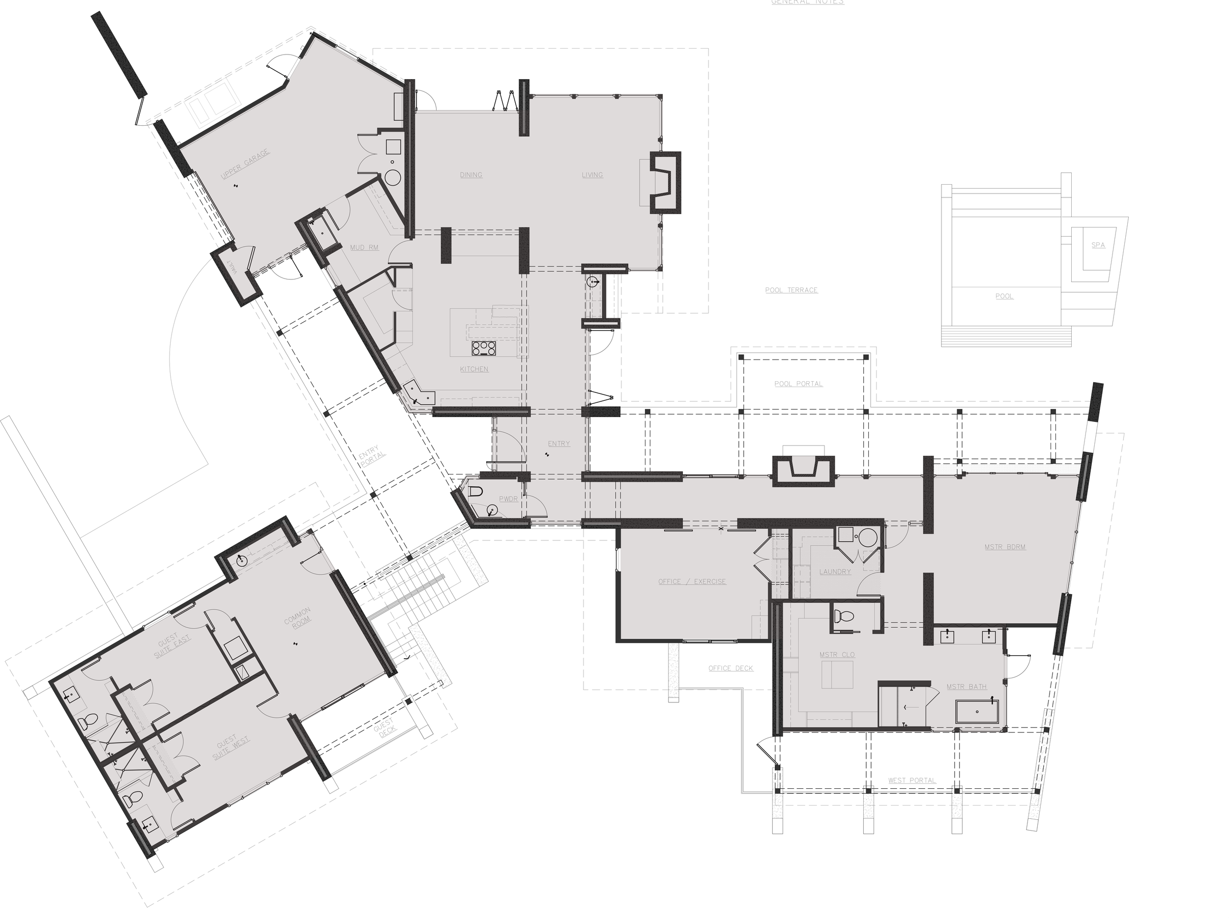
Architectural site plan private residence sedona arizona
Architectural site plan private residence sedona arizona
Architectural drawing elevation private residence sedona arizona
Architectural drawing elevation private residence sedona arizona
Modern living room with large floor-to-ceiling windows showing mountain views, a beige sectional sofa with throw pillows, contemporary coffee tables, and armchairs. A sculpture of a person stands near the fireplace, and a telescope is set up near the window. The ceiling features wooden beams and a circular chandelier with hanging lights.
Interior of a bedroom with a concrete wall, geometric art piece, pendant light, wooden accents, a bedside table with a mug and books, and a bed with pink and beige bedding.
Modern living room with wooden ceiling, concrete walls, glass doors, contemporary furniture, wall art, and a view outside.
Modern kitchen with wood cabinets, a large island, and a view of a balcony with greenery outside.
Modern bathroom with free-standing bathtub, large sliding glass doors leading to a balcony with trees outside, wood and concrete accents, and a mirror reflecting part of the room.
A home bar area with wooden cabinets, open shelves stocked with various liquor bottles and glassware, a small sink, and a wine cooler beneath the counter, surrounded by concrete and wooden walls with track lighting.
Modern dining area with a round marble table, orange upholstered chairs, wooden ceiling beams, and contemporary wall art.
Modern kitchen with wooden cabinets, gray countertops, open shelving with dishes, and a central island with barstools.
Indoor patio area with lounge chair, small side table, potted plants, wooden beams, modern pendant lights, and sliding glass doors leading outside to a deck with outdoor seating, surrounded by greenery.
Modern house with patio area featuring beige chairs, potted plants, and a small dog, surrounded by outdoor furniture and landscape with trees and clear blue sky.
Interior of a modern living room with a dark gray sofa adorned with patterned and fur pillows, wooden ceiling beams, three hanging woven pendant lights, and contemporary wall art. There's a small round coffee table with a pink vase and books, and a corner kitchen with open shelves and a concrete column.
A modern interior space with large windows, concrete pillars, a wooden ceiling beam, and a custom wooden bench near the window, overlooking the landscape of Sedona, Arizona.
Southwest modern home built on a hillside in Sedona, Arizona with large glass windows, outdoor seating, and a swimming pool, and a lift system to access the creek below.
Modern house with flat and sloped roofs, with a view of Sedona, Arizona beyond.